狭山市広瀬東 中古戸建て

1,380万円

埼玉県狭山市広瀬東2丁目32-28

西武新宿線「狭山市」駅徒歩24分

西武池袋線「稲荷山公園」駅徒歩24分

西武新宿線「狭山市」駅バス7分「河原宿」停歩5分

価格
1,380万円
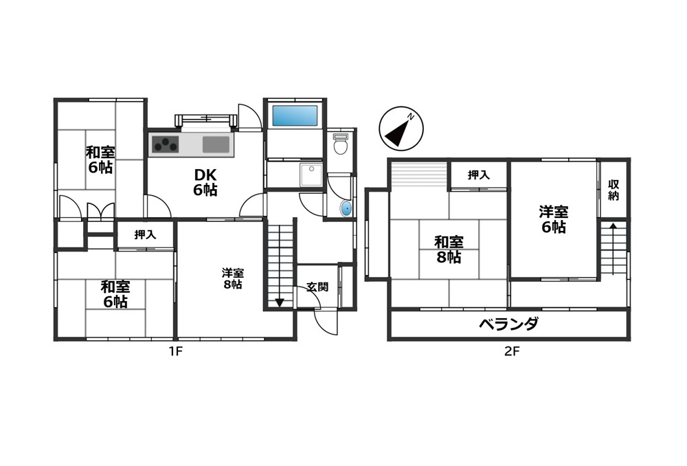
間取り/建物面積
5DK/93.55㎡
所在地
埼玉県狭山市広瀬東2丁目32-28
築年
1967年10月(築58年)
駐車
交通

西武新宿線狭山市」駅 徒歩24分

西武池袋線稲荷山公園」駅 徒歩24分

西武新宿線狭山市」駅 バス7分 「河原宿」 停歩5分

狭山市広瀬東 中古戸建ての基本情報

物件名
狭山市広瀬東 中古戸建て
価格
1,380万円
建物面積
93.55㎡
土地面積
50.72坪(167.67㎡)
築年月
1967年10月(築58年)
総戸数
-
所在地
埼玉県狭山市広瀬東2丁目32-28
交通

西武新宿線狭山市」駅 徒歩24分

西武池袋線稲荷山公園」駅 徒歩24分

西武新宿線狭山市」駅 バス7分 「河原宿」 停歩5分

狭山市広瀬東 中古戸建ての詳細情報

設備条件
  • 閑静な住宅地
  • 駐車3台可
設備(その他)
    -
駐車場/月額
有/-
土地権利
所有権
国土法届出
不要
用途地域
準工業
取引態様
専任媒介
引渡し
即時

狭山市広瀬東 中古戸建てで募集中の物件

  1. 28.29坪 (93.55㎡)

    1,380万円(48.78万円/坪)

周辺施設

  • ヤオコー 狭山店の画像

    ショッピングセンター

    ヤオコー 狭山店

    350m(5分)

  • TSUTAYA 狭山店の画像

    書店

    TSUTAYA 狭山店

    540m(7分)

  • そよら 武蔵狭山の画像

    ショッピングセンター

    そよら 武蔵狭山

    1090m(14分)

  • 狭山市役所の画像

    市役所・区役所

    狭山市役所

    1885m(24分)

近隣の物件

  1. 狭山市大字堀兼

    4LDK (95.22㎡)

    1,290万円

  2. 狭山市広瀬台1丁目

    6DK (98.32㎡)

    720万円

よく見られている物件

  1. 朝霞市幸町1丁目

    3LDK (77.63㎡)

    2,999万円

  2. 幸手市大字松石

    5DK (73.66㎡)

    330万円

  3. 鶴ヶ島市大字下新田

    1LDK (54.59㎡)

    670万円

  4. 狭山市広瀬東2丁目

    5DK (93.55㎡)

    1,380万円

狭山市広瀬東 中古戸建て

お気軽にお問い合わせください

LINEからお問い合わせ 無料お問い合わせ

バンダイ 南浦和本店

0487113712

10:00~19:00

(休:無休(年末年始を除く))